1 引言
綠色設計自20世紀80年代出現以來,迅速在全球各地掀起了一場制造業的革命,綠色設計和綠色制造是人類社會可持續發展的必由之路。再制造工程作為綠色設計的重要組成部分,自進入中國以來,結合當前我國可持續發展的要求,被越來越多的企業所接受,并投入到實際的生產過程中去。再制造工程作為我國新世紀重點發展起來的新方向,以節約資源、節省能源、保護環境為特色,以綜合利用信息技術、納米技術、生物技術等高技術為核心,充分體現了具有中國特色自主創新的特點。
再制造技術可以充分利用報廢零部件的價值,再制造產品的成本僅是新品的50%左右,但是卻可以節能60%、節材70%以上,并避免由生產制造過程引起的各種污染。產品拆卸是再制造工程中重要的環節,拆卸的好壞直接影響產品再制造性。但是,由于再制造技術進入我國時間較短,發展還不夠成熟,許多關鍵技術都被國外企業所掌握,所以在實際生產應用過程中,經常會遇到許多難以解決的問題,無法短時間內尋找到切實有效的解決方案。因此,就迫切的需要一種先進的理論來指導再制造過程。
2 TRIZ理論
TRIZ是俄文Teriya Resheniya Izobretatelskikh Zadatch(發明問題解決理論)的詞頭。由前蘇聯Genrich S.Altshuller及其領導的一批研究人員,在分析研究世界各國260萬件專利的基礎上,所提出的一套創新理論。
TRIZ對于產品的創新設計具有重要的指導意義,經過60多年的發展,已成為解決發明問題的強有力的方法學。該理論有產品進化理論、沖突解決原理、物質—場分析標準解、效應、ARIZ算法五種分析工具。

圖1 利用沖突解決矩陣解決問題流程
這里重點介紹利用沖突解決原理解決問題的過程,如圖1所示,首先把特定技術的問題抽象成為標準問題或一般問題,找到技術沖突,用39個工程參數描述這些技術沖突;然后查找沖突解決矩陣得到可用的發明原理,得到一般問題的解;最后再由發明原理和相關發明專利的啟發,通過設計者的經驗和靈感最終得到特定問題的具體工程解決方案。
3 應用沖突解決原理解決產品再制造過程中的具體問題
3.1 問題的提出
泵送機構是混凝土泵車的執行機構,用于將混凝土沿輸送管道連續輸送到澆注現場。泵送機構由兩個主油缸1、2,水箱3,兩個混凝土輸送缸4、5,兩個砼活塞6、7,擺搖機構8,分配閥9(S形閥),攪拌機構10,料斗11和出料口12組成,如圖2所示。工作原理:砼活塞(6、7)分別與主油缸(1、2)活塞桿連接,在主油缸的作用下,作往復運動,一缸前進,另一缸后退;輸送缸出口與料斗和S閥連通,S閥在擺搖機構的擺動油缸作用下,可以左右擺動。泵送混凝土料時,在主油缸作用下,砼活塞7前進,砼活塞6后退,同時在擺動油缸作用下,S閥9與輸送缸4連通,輸送缸5與料斗連通。這樣砼活塞6后退,便將料斗內的混凝土吸入輸送缸,砼活塞7前進,將輸送缸內混凝土料送入分配閥泵出。

圖2 泵送機構結構簡圖
當砼活塞6后退至行程終端時,控制系統發出信號,主油缸1、2換向,同時擺動油缸換向,使S閥9與輸送缸5連通,輸送缸4與料斗連通,這時砼活塞7后退,砼活塞6前進。依次循環,從而實現連續泵送。反泵時,通過反泵操作,使處在吸入行程的輸送缸與S閥連通,處在推送行程的輸送缸與料斗連通,從而將管路中的混凝土抽回料斗,如圖3所示。

圖3 泵送機構工作狀態簡圖
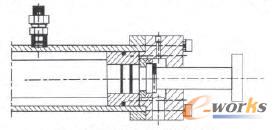
由泵送機構工作原理可知,主油缸內砼活塞活動頻率高,工作環境惡劣,所以極易損壞。對于損壞后需要更換的砼活塞,必須將其從輸送缸中退出到水箱方可進行拆卸。傳統的處理辦法是將砼活塞通過中間接桿連接在主油缸活塞桿上,如圖4所示。當需要拆卸砼活塞時,首先拆下中間接桿,然后點動操作中間接桿前進,使主油缸活塞桿靠近砼活塞,再將主油缸塞桿直接與砼活塞連接在一起,最后點動操作主油缸后退,使砼活塞退入水箱中。拆完后又要按照上述步驟的反過程進行安裝。這種方法拆卸難度極大,操作復雜,而且浪費大量的時間,影響工作效率,同時也給產品再制造過程中的拆卸過程帶來了極大的困難。

圖4 泵送機構主視圖
3.2 問題的分析
為了減小維修難度、提高產品的可拆卸性和可維修性,可以考慮在原有結構基礎上,設計一種可以使砼活塞自動退出的裝置,但與此同時,增加一種裝置必然會增加泵車機構的復雜性,轉換成用39個通用工程參數來描述,即為“自動化程度”與“裝置的復雜性”之間的沖突。通過查詢沖突矩陣表可得解決這一沖突可用的發明原理,如表1所示。
表1 沖突矩陣表

由表1可知,解決該問題可選用的發明原理為15、24、10號原理。經分析,原理15和原理10具有可行性。
選擇的原理及對應的解決方案,如表2所示。
表2 發明原理及對應解決方案

經分析,第二種方案成本較高,研發周期長,且進行技術改進所面臨的困難較大。故選取第一種方案。
3.3 問題的解決
選取方案一作為最終的解決方案。改進后的泵送機構包括輸送缸、砼活塞、水箱、主油缸活塞桿、主油缸,砼活塞直接與主油缸活塞桿聯接,將主油缸行程加長,主油缸后端蓋上有緊固螺釘固定一頂桿,頂桿前端可與主油缸活塞桿尾端接觸,如圖5所示。正常工作時,當主油缸活塞桿向后運動碰到頂桿時,頂桿起限位作用,使砼活塞保持在工作位置。當需要更換或清洗砼活塞時,擰開頂桿固定螺釘,如圖6所示。點動操作主油缸活塞桿后退時,主油缸活塞桿就可推動限位頂桿一直退到底,使砼活塞退入水箱中,達到方便清洗和維修的目的。

圖5 正常工作時頂桿的狀態

圖6 砼活塞退出時頂桿的狀態
該方案的實施有效地提高了裝置的自動化程度,在提高產品可拆卸性和可維修性的同時也方便了產品的日常檢查和維護,并進一步解決了產品再制造過程中拆卸困難的難題。該設計方案已申請中國實用新型專利。
4 總結
節能減排是全世界應對資源環境問題的一項重大舉措,可持續發展更是關乎子孫后代生存的大事。再制造是以提升舊產品性能為目標,以優質、高效、節能、環保為原則,以先進技術為手段,對舊產品修復改造。對于產品再制造過程中遇到的工程問題,使用常規的方法往往無法解決,而使用高層次的創新方法-TRIZ理論則可以快速高效的得到好的解決方案。利用TRIZ理論中的沖突解決原理,分析了混凝土泵車再制造過程中的實際工程問題,并提出具體解決方案,提高了砼活塞的可拆卸性、可維修性。所以說,使用TRIZ理論指導再制造過程可以增加決策方案的科學性,同時也為產品的創新提供了一條便捷的道路。
核心關注:拓步ERP系統平臺是覆蓋了眾多的業務領域、行業應用,蘊涵了豐富的ERP管理思想,集成了ERP軟件業務管理理念,功能涉及供應鏈、成本、制造、CRM、HR等眾多業務領域的管理,全面涵蓋了企業關注ERP管理系統的核心領域,是眾多中小企業信息化建設首選的ERP管理軟件信賴品牌。
轉載請注明出處:拓步ERP資訊網http://www.sdyuan.com/
本文標題:再制造產品創新設計中TRIZ理論分析
























