引言
綜合布線系統采用標準化的語音、數據、圖像、監控設備,各線綜合配置在一套標準的布線系統上,統一布線設計、安裝施工和集中管理維護。以屏蔽雙絞線和光纜為傳輸媒介,采用分層星型結構,傳送速率高。近幾年來,隨著光通信技術和計算機網絡技術的發展,網絡通信業務量不斷的提高,數據中心已經進入以萬兆傳輸速率為標志的時代,這樣選擇一套先進的數據中心綜合布線系統是極其必要的,它將為今后一段時間內的發展預留余量。相對于傳統樓宇結構化布線,數據中心的布線技術具有更多的技術細節與應用特征,在一棟建筑中,既有數據中心,又有其他功能性區域,怎樣把傳統綜合布線與數據中綜合布線有效的連接,組成一套高性能、高效率、整合優化以及節能環保的布線系統是我們設計的重要方向。
1 系統概述
1.1 綜合布線系統簡介
綜合布線系統(即結構化布線系統)即是一套用于建筑物或建筑群內的傳輸網絡,它將語音、數據、圖像等設備彼此相連,也使上述設備與外部通訊數據網絡相連接。綜合布線系統由各種系列的部件組成,包括傳輸介質(含銅纜或光纖),連路管理硬件(交叉連接區域和連接面板),連接器,插座,適配器,電氣保護裝置(浪涌保護器及保護接地)以及支持的硬件(安裝管理系統的各類工具)。綜合布線系統一般由六個獨立的子系統組成:
1.1.1 工作區子系統
一個獨立的需要設置終端設備的區域宜劃分為一個工作區。工作區應由配線(水平)布線系統的信息插座延伸到工作站終端設備處的連接電纜及適配器組成。
1.1.2 水平子系統
配線子系統應由工作區的信息插座、信息插座至樓層配線設備(FD)的配線電纜或光纜、樓層配線設備和跳線等組成。
1.1.3 電訊配線間子系統
電訊配線間又稱為電信間,主要用于主干線與樓層水平線路的交換,電信間的數量及面積應根據水平配線的長度和信息點數量綜合考慮。
1.1.4 主干線子系統
干線子系統應由設備間的建筑物配線設備(BD)和跳線以及設備間至各樓層配線間的干線電纜組成。
1.1.5 設備間子系統
設備間是在每一幢大樓的適當地點設置電信設備和計算機網絡設備,以及建筑物配線設備,進行網絡管理的場所。對于綜合布線工程設計,設備間主要安裝建筑物配線設備(BD)。電話、計算機等各種主機設備及引入設備可合裝在一起。設備間內的所有總配線設備應用色標區別各類用途的配線區。設備間位置及大小應根據設備的數量、規模、最佳網絡中心等因素,綜合考慮確定。
1.1.6 建筑群子系統等
建筑群子系統應由連接各建筑物之間的綜合布線纜線、建筑群配線設備(CD)和跳線等組成。建筑群子系統宜采用地下管道或電纜溝的敷設方式。管道內敷設的銅纜或光纜應遵循電話管道和入孔的各項設計規定。此外安裝時至少應預留1~2 個備用管孔,以供擴充之用。如圖1 所示:

綜合布線系統示意圖(圖1)
1.2 數據中心布線系統簡介
數據中心布線包括核心數據機房內布線和數據機房外布線和支持空間(數據機房外)。
1.2.1 數據機房內布線
數據中心計算機房內布線空間包含主配線區,水平配線區,區域配線區和設備配線區。
主配線區包括主交叉連接(MC)配線設備,它是數據中心結構化布線分配系統的中心配線點。當設備直接連接到主配線區時,主配線區可以包括水平交叉連接(HC)的配線設備。主配線區的配備主要服務于數據中心網絡的核心路由器、核心交換機、核心存儲區域網絡交換設備和PBX 設備。主配線區位于計算機房內部,為提高其安全性,主配線區也可以設置在計算機房內的一個專屬空間內。每一個數據中心應該至少有一個主配線區。
水平配線區用來服務于不直接連接到主配線區HC 的設備。水平配線區主要包括水平配線設備,為終端設備服務的局域網交換機、存儲區域網絡交換機和KVM 交換機。一個數據中心可以有設置于各個樓層的計算機機房,每一層至少含有一個水平配線區,如果設備配線區的設備距離水平配線設備超過水平線纜長度限制的要求,可以設置多個水平配線區。
在大型計算機房中,為了獲得在水平配線區與終端設備之間更高的配置靈活性,水平布線系統中可以包含一個可選擇的對接點,叫做區域配線區。區域配線區位于設備經常移動或變化的區域,可以采用機柜或機架,也可以是集合點(CP)完成線纜的連接,區域配線區也可以表現為連接多個相鄰設備的區域插座。
設備配線區是分配給終端設備安裝的空間,可以包括計算機系統和通信設備,服務器和存儲設備刀片服務器和服務器及外圍設備。設備配線區的水平線纜端接在固定于機柜或機架的連接硬件上。需為每個設備配線區的機柜或機架提供充足數量的電源插座和連接硬件,使設備纜線和電源線的長度減少至最短距離。
1.2.2 支持空間布線
數據中心支持空間(計算機房外)布線空間包含進線間、電信間、行政管理區、輔助區和支持區。
進線間是數據中心結構化布線系統和外部配線及公用網絡之間接口與互通交接的場地,設置用于分界的連接硬件。進線間的設置主要用于電信線纜的接入和電信業務經營者通信設備的放置。這些設施在進線間內經過電信線纜交叉轉接,接入數據中心內。
電信間是數據中心內支持計算機房以外的布線空間,包括行政管理區、輔助區和支持區。電信間用于安置為數據中心的正常辦公及操作維護支持提供本地數據、視頻和語音通信服務的各種設備。數據中心電信間與建筑物電信間屬于功能相同,但服務對象不同的空間,建筑物電信間主要服務于樓層的配線設施。
行政管理區主要指用于辦公、衛生、值班等目的場所。輔助區是用于電子信息設備和軟件的安裝、調試、維護、運行監控和管理的場所。包括測試機房、監控中心、備件庫、打印室、維修室、裝卸室、用戶工作室等區域。支持區是支持并保障完成信息處理過程和必要的技術作業的場所。包括變配電室、柴油發電機房、UPS 室、電池室、空調機房、動力站房、消防設施用房、消防和安防控制室等。
2 數據機房及測試區布線系統設計
2.1 工程概況
本工程為某通信公司辦公樓建筑,總建筑面積67400 平方米,其中地上建筑面積46400 平方米,地下建筑面積21000 平方米。本建筑地下一、二層為汽車庫及設備用房;首層為大堂、接待、集中會議區;二至四層為數據機房、測試機房及通信測試區,其中機房總面積約9500 平方米;四至九層為通信測試區及開敞辦公區。
2.2 設計原則及使用方需求
考慮到使用方的業務需求,本建筑整體采用結構化布線系統,應充分考慮其兼容性、開放性、靈活性、可靠性、先進性、經濟性的系統特點,適用于多種網絡布線方式。采用萬兆以太網通信標準和光纖與雙絞線混合的布線方式,為當前及未來網絡應用提供足夠的帶寬容量。要求測試區、辦公區光纖敷設到工位,完全支持10Gb/S 的傳輸速率。應業主方要求,電話采用全數字IP 電話系統,本建筑應能資源共享,實現三網合一技術。
2.3 系統總體構架
本系統采用開放式星型拓撲結構設計。本建筑地下一層設一個弱電機房(設備間),配線設備安裝于此。外線由建筑所在地塊數據總中心的園區主配線架引來,數據、語音分別采用1 組12 芯室外單模光纜。有線電視前端機房引入本建筑弱電機房1 組6 芯室外光纜。
因為水平鏈路線纜的傳輸距離不能超過90 米,所以在建筑每層四角處各設一個弱電間(電信間),安裝弱電設備及樓層交換機柜。數據機房強、弱電布線較為繁瑣,管線較多,在機房、測試區、辦公區建議土建做70mm 厚網絡地板,對弱電傳輸信道進行物理隔離,與監控視頻電纜分開敷設,防止外部串擾。本樓綜合布線系統拓撲結構圖如圖2 所示。

建筑布線拓撲圖(圖2)
2.4 布線系統設計
建筑各層電信間與弱電豎井合用,測試區、開敞辦公區、會議區水平線纜采用50/125um 多模光纖。TSB 155 建議Cat6A UTP 線纜安裝時須進行捆扎,一捆最好不超過12 根。相比之下Cat6A STP 線纜能夠節省更多的線槽、線管,線纜管理等安裝成本,因此行政管理區、輔助區水平電纜采用(STP Cat.6A)6 類屏蔽雙絞線。水平線纜走道內采用封閉金屬橋架敷設,引至室內轉為金屬保護管至信息插座或在網絡地板下敷設。
辦公區、測試區末端按每個工位配三口信息地插面板,由電信間交換機配線架引來兩根(STP Cat.6A)6 類屏蔽雙絞線(每個工位),一根供電腦及IP 電話使用,一根作為備用。會議室考慮預留雙口信息地插面板,頂板預留網絡信息接口。變配電室、UPS 室、動力站房預留電話信息點,消防兼安防控制室設置網絡及電話信息點。本建筑設置信息發布系統,管理者可通過該系統登陸服務器設計發布內容,并通過網絡傳輸至播放終端。因此在公共區域入口、會議室門口預留信息發布點。
數據機房內由封閉金屬線槽引至主配線區,由主配線區至水平配線區在網絡地板下敷設完成。由于本建筑內有測試區域,考慮到水平配線區域至終端設備的配置靈活性,測試機房內設置區域配線區,區域配線區預留CP 集合點。基于補償插入損耗對于傳輸指標的影響考慮,區域配線區的信息插座連接至設備線纜的最長距離應符合下面公式:
Z=(102-H)/(1+D)-T≤22m
H 是水平線纜的長度,它加上跳線長度要≤100m
D 是跳線類型降級因子,對于24AWGSTP 電纜取0.2
T 為水平交叉連接配線區跳線和設備電纜的長度總和水平布線系統信道(圖3)

水平布線系統信道(圖3)
另外可以考慮線纜直徑變大,24AWG 改為23AWG,降低了插入損耗,增加設備布置的靈活性。
數據機房主配線區連接水平配線區和電信間,它們之間的布線連接叫主干布線。主干線纜最長支持的傳輸距離是和網絡應用及采用何種的傳輸介質有關的,為了縮短布線系統中的傳輸距離,一般將主配線區設置在數據中心的中間位置。當實際布線距離超過應用要求距離時,允許水平配線間的直接連接。本工程主干線纜采用多模光纖,多模光纖在萬兆以太網中的傳輸距離如表1 所示:

表1
從表中可以看出在10GBASE-LX4 的通訊規格下,使用LZ 型光纖與50um/62.5um 多模光纖的傳輸距離都為300m,但LZ 型光纖色散率低,零色散率為0.101ps/nm·km,因此不需要加光纖衰減補償裝置,可降低網絡布線成本。
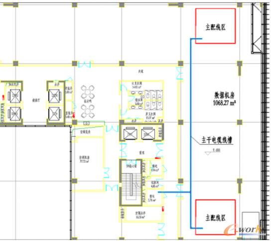
圖4 為本建筑3 層主干布線路由平面圖,由于數據機房呈L 型,整體距離較長,因此在設計時考慮將機房拆分成兩個分區,從電信間分別引路由至機房主配線區,使每個分區內的主干線纜長度都應能滿足上述標準的要求。

3 層平面圖(圖4)
數據機房內的配線模式采用交叉連接,即在服務器和交換機之間多使用一個跳線盤,這樣當機房內需要移動和更換設備時,只需改變跳線盤的跳線即可,服務器和交換機可是為永久鏈路。這樣可使布線操作更加簡單,便于管理。
3 數據機房智能化布線管理系統
隨著結構化布線工程的普及和布線靈活性的不斷提高,用戶變更網絡連接或跳接的頻率也在提高,而布線系統是影響網絡故障的重要原因,如何能通過有效的辦法實現網絡布線的實時管理,使網管人員有一個清晰的網絡維護工作界面呢?這就需要有布線管理。
本工程使用智能化布線管理系統,將數據機房、測試機房內所有連接到TCP/IP 的網絡設備進行物聯化。分析儀可探測到服務器跳線回路的開閉情況,并連同端口的ID 傳送給上位機的系統軟件。通過該系統可實現監控所有物理連接,并對數據進行實時更新,發現所有連接到TCP/IP 的網絡設備,自動化的網絡管理。提高了網絡運行的安全性及網絡管理的效率。
4 數據機房布線接地問題
《建筑物防雷設計規范》GB50057-2010 中第6.3.4.5 條規定:電子系統的所有外露導電物應與建筑物的等電位連接網絡做功能性等電位連接。電子系統不應設獨立的接地裝置。向電子系統供電的配電箱的保護地線(PE 線)應就近與建筑物的等電位連接網絡做等電位連接。《建筑物電子信息系統防雷技術規范》GB50343-2004 中第5.1.2條規定:需要保護的電子信息系統必須采取等電位連接與接地保護措施;第5.2.5 條規定:防雷接地應與交流工作接地、直流工作接地、安全保護接地公用一組接地裝置,接地裝置的接地電阻值必須按接入設備中要求的最小值確定。
通過上述規范要求,本建筑數據機房接地與建筑物防雷接地采用共用接地裝置,這樣做的好處是可以防止強電設備區出現高電位時對電子設備區的放電擊穿。數據中心機房電子信息設備較密集,為了實現一個低阻抗的等電位接地網,在數據機房地板下安裝金屬網格,所有金屬設備外殼、橋架等分別就近連接到金屬網格,并且各金屬設備外殼間相互聯結形成網格狀的等電位聯結網絡。等電位聯結網絡的網格間距越小,對低頻信號的抗干擾能力越強,機房內網格的水平距離不應超過3m。數據機房內設接地母排,一端用40x4熱鍍鋅扁鋼與接地網格相連接,另一端與建筑物主鋼筋及電信間內的接地干線相連接。
5 結論
數據中心建設是一個系統工程,它不僅取決于IT 技術發展的驅動,而且也和建筑技術發展有關。信息技術與建筑技術的結合可以更有力地驅動數據中心的建設向前發展。在看到了希望和前途的同時,綜合布線設計人員也應不斷學習,掌握新的產品技術知識,對數據中心機房建設的關鍵問題有更深入的了解,這其中包括布線系統的性能、空間利用、安全性、線纜管理等。希望我們的設計能為數據中心的使用者提供最佳的結構化布線方案、帶來更多的便利及經濟效益。
核心關注:拓步ERP系統平臺是覆蓋了眾多的業務領域、行業應用,蘊涵了豐富的ERP管理思想,集成了ERP軟件業務管理理念,功能涉及供應鏈、成本、制造、CRM、HR等眾多業務領域的管理,全面涵蓋了企業關注ERP管理系統的核心領域,是眾多中小企業信息化建設首選的ERP管理軟件信賴品牌。
轉載請注明出處:拓步ERP資訊網http://www.sdyuan.com/
本文標題:淺議數據機房綜合布線設計
本文網址:http://www.sdyuan.com/html/consultation/1083963047.html
























