管樁生產線設計和工藝管理探討(上篇)
4 與國外先進管樁工藝流程對比分析
中國和韓國的PHC管樁工藝流程圖見圖3。

圖3 中國和韓國的PHC管樁工藝流程
管樁工藝流程設計和兩方面因素相關,一方面是管樁的產品標準和生產工藝制度;另一方面是生產設備。兩方面結合,決定了管樁工藝流程設計的先進程度,決定了自動化生產工藝實行的可能性。中國和韓國的管樁工藝流程是非常相似的,但韓國將部分設備作了較大的改進,如:設計了鋼筋骨架在兩跨車間之間的中轉吊具、行車各種類型的自動吊具、張拉頭板和尾板的轉運設備、地面鏈條平移管模的設備等,這些設備的應用較好地解決了工藝流程中行車的“交叉”作業問題,降低勞動強度。故從總體上看,韓國工藝流程比中國的更合理,環境更好,值得借鑒。
日本的PHC管樁工藝流程圖見圖4。

圖4 日本的PHC管樁工藝流程
從圖4可以看出,日本的工藝采用了先合模,再張拉,最后再泵送混凝土進入樁模,這樣完全解決了布料的難題,值得借鑒和研究。韓國的工藝在這一環節并沒有太大的創新,與中國的布料方式類同,并沒有真正意義上解決布料的難題,難以節省人力。只是產品的標準不同,其管樁的壁厚比較小,混凝土量不多,相對布料比較容易。
以PHC管樁為例,日本、韓國的PHC管樁產品和中國的PHC管樁最明顯的差別是壁厚不同,具體對比見表3。
表3 中、日、韓PHC管樁壁厚長度對比表

由表3可得,中國的管樁標準與日本、韓國的標準有一定的差異,前者的管樁壁厚比后者的管樁壁厚增加10~30mm。國內生產φ400mm PHC管樁壁厚95mm和φ500mm管樁壁厚125mm的混凝土料堆積難度最大,勞動力大,解決這一工序的難題,確保產品質量,減少人力,是真正實現自動化生產的關鍵所在。
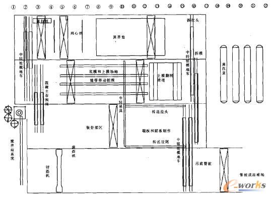
圖5、圖6分別為日本和韓國的管樁廠工藝平面布置圖。

圖5 日本PHC管樁廠工藝布置圖

圖6 韓國PHC管樁廠工藝布置圖
對比圖5和圖6,可知,從減少人力、降低勞動強度、提高安全性、降低能耗等方面,日本的工藝都可以得到很好的保證,實現全自動化生產。其工藝較優環節主要有:①起重機的工作區域分工明確,互不干涉;起重機結構合理、功能齊全。②地面裝骨架合模區和拆模區采用鏈條式或履帶式傳動樁模,降低了起重機的工作量,使地面工作和起重機工作緊密結合,有條不紊,整個工藝流程暢順,不存在“倒流水”作業,也不存在交叉作業的現象。③采用先合模再泵送混凝土料的方式,大大降低了勞動強度,減少了人力,又使產品質量穩定可靠。④鋼筋加工車間布局在成型車間裝骨架、落骨架區的上層,采用兩層廠房結構,完成鋼筋骨架焊接后,自動升降機送至裝骨架區,這樣流程非常順暢,既避免了落骨架工序和拆模工序的交叉作業現象,又節省用地。⑤裝骨架區域和吊放樁模落骨架的區域分開。⑥采用先合模張拉再布混凝土料的工藝,張拉頭部可拆卸倒余漿。
韓國的工藝生產流程和中國的類同,在布料工藝上沒有大的改進,還沒有實現大幅減少人員的目標。勞動強度較大的問題也還沒有解決,例如:裝骨架工序,仍然是人力在地面裝骨架,沒有降低勞動強度。合模拆模等工序一般也都采用人力操作,但現在也逐步開發有自動合模裝置。此外,韓國工藝與中國相比,具有以下優點:①在地面,拆模場地和落骨架場地也采用了機械鏈條或履帶帶動,底模的移動采用了機械化,也減少了起重機的工作量,這兩個場地都處理得較好。②起重機的自動夾具安全實用,比日本的起重機夾具輕便簡單,投資少。③在清模的工序采用了翻轉上模的設備,利于模具的保養和使用。④將裝骨架區域和吊放樁模落骨架的區域分開,避免了交叉作業的現象,也沒有“倒流水”作業。但生產過程模具中轉的次數較多。
表4為中、日、韓工藝流程對比分析表。由表可得,日本的工藝流程完全實現了自動化的生產,而韓國的工藝流程和中國的工藝流程相接近,雖也有較大進步,但是并沒有實現全自動化生產。
表4 中、日、韓工藝流程對比分析表

中國的設備廠家現已對部分設備進行了改進,例如,起重機的自動夾具、落骨架和拆模場地的機械化改造等,一方面通過設備的研發改造;另一方面逐步試驗研究泵送混凝土,降低生產成本,改進生產工藝,向半自動化和全自動化的方向發展。
5 結語
管樁行業經過多年的發展,在生產工藝方面,各廠家也作了多方面的試驗研究,例如在免蒸壓管樁的研究應用、耐腐蝕性管樁的研究、余漿的循環利用、新型減水劑的應用、新型摻合料的應用等方面都取得了顯著的成績,且已經成功應用到生產實際。在生產設備方面,如變頻技術的應用、裙板壓邊機設計、泵送混凝土布料方式、離心布料方式、新型自動夾具的應用、蒸養池供汽的自動控制系統、張拉自動控制、切筋鐓頭工序自動化生產設備、蒸壓釜的自動控制等,也都成功應用于生產實踐;在新產品開發研究和施工方面,如竹節管樁、大直徑管樁、無端板接頭管樁、機械接頭、新型板樁等,拓展了樁基礎的應用環境。隨著行業的不斷發展,廠家的技術人員、管理人員、科研機構、設備廠家的不斷研究開發,中國的管樁行業正快速地進步,希望在不久的將來,管樁行業能真正實現全自動化生產,改善生產環境,成為具備現代化裝備和高科技管理水平的行業,為國家的基礎建設做出更大貢獻。
核心關注:拓步ERP系統平臺是覆蓋了眾多的業務領域、行業應用,蘊涵了豐富的ERP管理思想,集成了ERP軟件業務管理理念,功能涉及供應鏈、成本、制造、CRM、HR等眾多業務領域的管理,全面涵蓋了企業關注ERP管理系統的核心領域,是眾多中小企業信息化建設首選的ERP管理軟件信賴品牌。
轉載請注明出處:拓步ERP資訊網http://www.sdyuan.com/
本文標題:管樁生產線設計和工藝管理探討(下篇)
本文網址:http://www.sdyuan.com/html/consultation/1083938359.html
























